モリス御徒町10F三方角住戸(成約済)中古フルリフォーム物件
10階西北東の三方角住戸!眺望、日当り、通風、採光良好!山手線含め全3駅5路線利用可(徒歩10分圏内)!フルリノベーション物件!
| 価格 | 6,580万円(税込) | 引き渡し時期 | 2024年4月以降 |
|---|---|---|---|
| 所在地 | 東京都台東区小島1丁目6−4 | 駐輪スペース | 有り:空き区画あり(年間使用料 2,000円) |
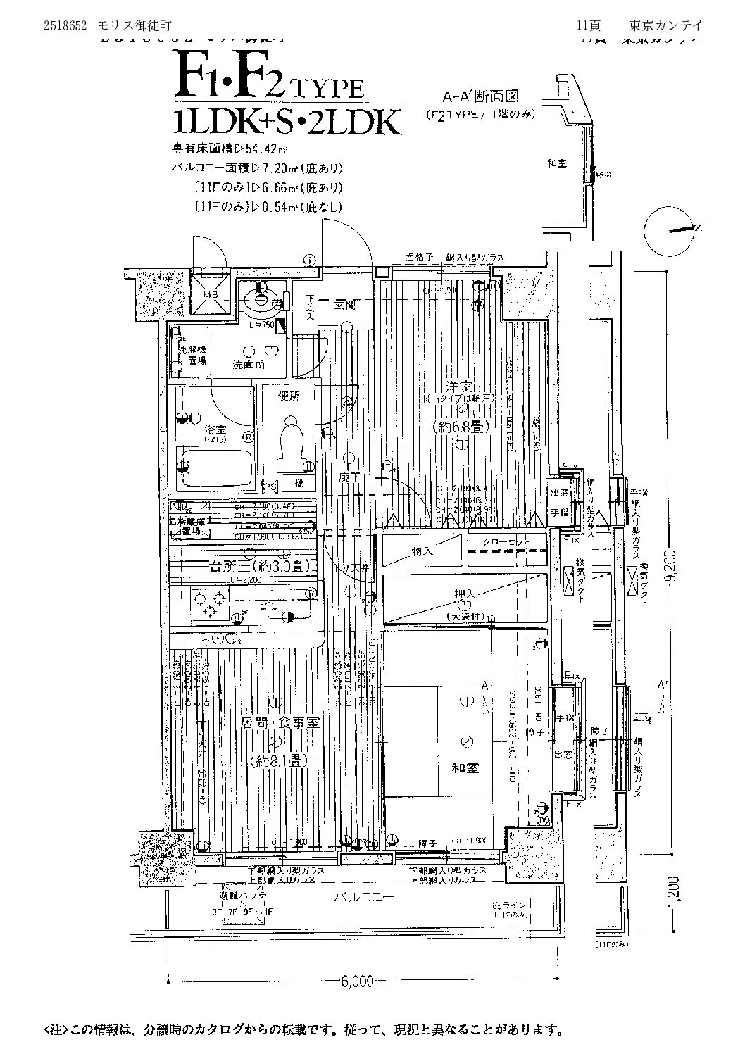
| 間取り | 2LDK | バイク置き場 | 無し |
| 専有面積 | 54.42㎡/バルコニー7.20㎡ | 駐車場 | 無し |
| 築年月 | 1996年7月(平成8年7月)※新耐震基準マンション | 管理費 (月額) |
15,350円 |
| 総戸数 | 61戸 | 修繕積立金 (月額) |
11,310円 |
| 所在階 | 10階 | 建物管理会社 | 株式会社 菱サ・ビルウェア |
| 構造 | SRC造地下1階地上11階建 | 施工会社 | 日産建設 株式会社 |
| 土地権利 | 所有権 | 分譲会社 | 昌立地所 株式会社 |
| 現況 | 現在フルリノベーション中(2024年3月末完成予定) | 最寄駅 | 都営地下鉄大江戸線『新御徒町駅』徒歩4分 TX『新御徒町駅』徒歩4分 東京メトロ日比谷線『仲御徒町駅』徒歩8分 JR山手線『御徒町駅』徒歩11分 JR京浜東北線『御徒町駅』徒歩11分 |
| 引き渡し時期 | 2024年4月以降 | ||
| 駐輪スペース | 有り:空き区画あり(年間使用料 2,000円) | ||
| バイク置き場 | 無し | ||
| 駐車場 | 無し | ||
| 管理費 (月額) |
15,350円 | ||
| 修繕積立金 (月額) |
11,310円 | ||
| 建物管理会社 | 株式会社 菱サ・ビルウェア | ||
| 施工会社 | 日産建設 株式会社 | ||
| 分譲会社 | 昌立地所 株式会社 | ||
| 取引形態 | 売主 | ||
| 最寄駅 | 都営地下鉄大江戸線『新御徒町駅』徒歩4分 TX『新御徒町駅』徒歩4分 東京メトロ日比谷線『仲御徒町駅』徒歩8分 JR山手線『御徒町駅』徒歩11分 JR京浜東北線『御徒町駅』徒歩11分 |
備考
【フルリフォーム内容】
・室内設備を全て最新設備に交換(ユニットバス・洗面台・トイレ・システムキッチン・照明等)
・ドアやクローゼット等の金具や建具を全て新規交換
・クロスやフロアタイルを全て新規交換
・和室→洋室に変更
・キッチンをオープンキッチンに変更
・キッチンにカップボード新設
・給湯設備新規交換
・水回り排水管新規交換
・コンセントパネル、照明等新規交換
・仕上がり後、クリーニング
【固定資産税・都市計画税 (令和5年度評価証明書参照)】
土地 17,813円 建物 82,600円 合計 100,413円
※当マンションはペット不可です。(観賞用の魚・小鳥は大丈夫です。)
